Новый век 1
НОВОСТИ ДНЯ
НОВОСТИ

На проспекте Героев Отечества установят беседки по три миллиона рублей

На проспекте Героев Отечества установят беседки по три миллиона рублей
24.11.2017, 09:51
Поделитесь с друзьями:

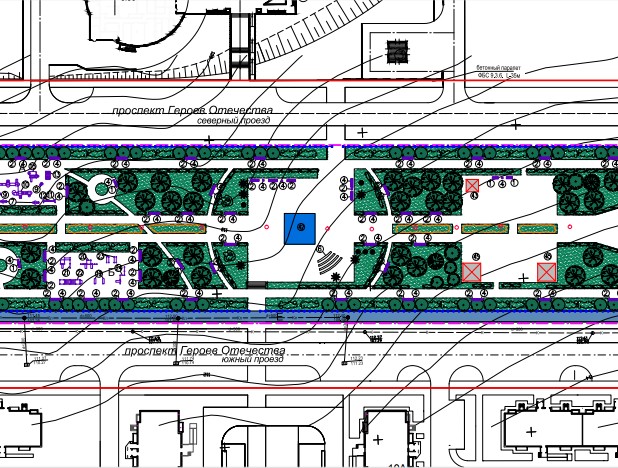
Сегодня, 23 ноября, комитет благоустройства администрации Саратова разместил на сайте «Госзакупки» два электронных  аукциона по поиску исполнителя, который установит беседки на проспекте Героев Отечества.

Согласно документам, предполагается установить две беседки размером 5,8 х 5,8 метра и высотой четыре метра. Беседки должны быть изготовлены из стального профиля «с использованием декоративных чугунных кронштейнов и чугунного меандра». Цена каждого контракта почти три миллиона рублей.

Беседки победители аукционов должны будут установить до 25 декабря. 

 

 

ПОСЛЕДНИЕ НОВОСТИ
ВАЖНО:
АНОНСЫ
© Социально-информационный портал «Лица», 2009 – 2026
Письмо в редакцию         02.01.2026
0.2408549785614